1500 kVA Ansi C57 12.34 ٽرانسفارمر-23/0.44 kV|سلواڊور 2025
گنجائش: 1500 kVA
وولٹیج: 23D-0.44y/0.254 kV
خصوصيت: ٽامي واء سان

پائيدار ۽ توانائي وارو-موثر، ٽي فيز پيڊ مائونٽ ٿيل ٽرانسفارمر جديد گرڊ کي طاقت ڏئي ٿو!
01 جنرل
1.1 پروجيڪٽ جي پويان عملي چئلينج
1500 kVA ٿري-فيز پيڊ- 2025 ۾ سلواڊور ڏانهن مائونٽ ٿيل ٽرانسفارمر ڪاغذ تي سڌو نظر اچي ٿو-23 kV ڊيلٽا، 0.44/0.254 kV سيڪنڊري، Dyn1، ONAN کولنگ، NLTC ±2.5 × 2.5 پر حقيقي ڪهاڻي ڪڏهن به نمبر نه آهي. اهو ڪيئن آهي ٽرانسفارمر اصل ۾ استعمال ڪيو ويو آهي، ۽ ڇا گراهڪ خاموشيء سان انسٽاليشن جي ڏينهن کان گهڻو اڳ بابت پريشان آهن. سائيٽون تنگ آهن. ڪڏهن شهري، ڪڏهن صنعتي، ڪڏهن ٻن عمارتن جي وچ ۾ صرف هڪ ننڍڙو ڪنڪريٽ پيڊ. گرمي، نمي، لوڻ جو ڪوهيڙو-موسم بدلجندو رهندو آهي، پر اميدون نه هونديون آهن: ٽرانسفارمر محفوظ هجڻ گهرجي، سيل هجڻ گهرجي، آپريشن دوران ڪنهن کي حيران نه ڪرڻ گهرجي. لوڊ پڻ چوڌاري ٽپو ڏئي ٿو. تجارتي چوٽيون، صنعتي شروعاتي واهه، مخلوط رهائشي گهرج- سڀ ڪجهه مستحڪم وولٽيج لاءِ پڇڻ ۽ هڪ يونٽ جيڪو نه ڦڙڪندو. ۽ يقينا، گراهڪ ڪجهه چاهيو ٿا جيڪو رهي ٿو: نه وڌيڪ گرمي، نه سنکنرن، نه قيمتي سار سنڀال هر ڪجهه مهينن ۾. اهو ئي سبب آهي ته هي يونٽ ٽامي جي وائنڊنگز سان گڏ اچي ٿو بهتر چالڪتا ۽ حرارتي برداشت لاءِ، بيونٽ فيوز، اوور ڪرنٽ تحفظ لاءِ، ۽ ELSP فيوزن کي فالٽ وهندڙن کي محدود ڪرڻ لاءِ ان کان اڳ جو اهي مصيبت پيدا ڪن. IEEE C57.12.34-2022 جي تحت ٺهيل هر شي، تنهنڪري مقامي گرڊ سان انضمام سادو رهي ٿو
1.2 ٽيڪنيڪل وضاحت
1500 kVA پيڊ نصب ٿيل ٽرانسفارمر وضاحتن جو قسم ۽ ڊيٽا شيٽ
|
تائين پهچايو ويو
سلواڊور
|
|
سال
2025
|
|
قسم
پيڊ نصب ٿيل ٽرانسفارمر
|
|
معياري
IEEE StdC57.12.34-2022
|
|
درجه بندي پاور
1500 kVA
|
|
تعدد
50HZ
|
|
مرحلو
3
|
|
کاڌو
لوپ
|
|
سامهون
مئل
|
|
کولڻ جو قسم
ONAN
|
|
پرائمري وولٹیج
23D kV
|
|
ثانوي وولٽيج
0.44y/0.254 kV
|
|
ويندڙ مواد
ٽوپي
|
|
ڪنگائي بي گھرڻ
ڊن 1
|
|
رڪاوٽ
5.75%
|
|
ٽيپ ڪريو Changer
NLTC
|
|
ٽپڻ جي حد
±2*2.5%
|
|
نه لوڊ نقصان
1.97 ڪلوواٽ
|
|
لوڊ نقصان تي
16kW
|
|
لوازمات
معياري ترتيب
|
1.3 انجنيئرنگ ڊرائنگ
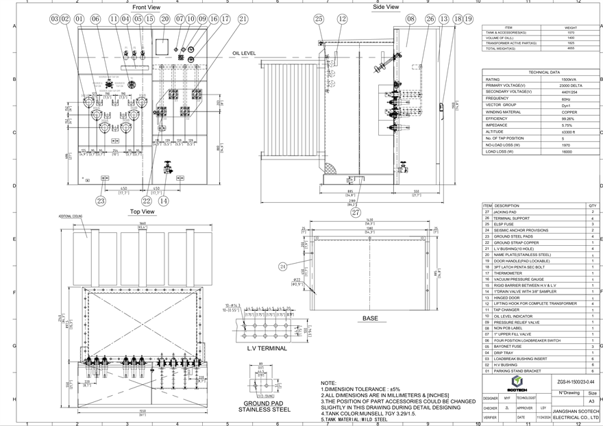
1500 kVA پيڊ نصب ٿيل ٽرانسفارمر ڊاگرام ڊرائنگ ۽ سائيز.
![]() |
![]() |
1.4 ٽيڪنيڪل نمايان
![]() |
ٽامي جي ونڊ هاء چالکائي، گرمي ۽ اوورلوڊ مزاحمتي، ڪارڪردگي بهتر ڪرڻ ۽ خدمت جي زندگي کي وڌائڻ |
![]() |
اعلي- ڪارڪردگي نقصان ڊيزائن نه-1.97 kW جو لوڊ نقصان ۽ 16 kW جو لوڊ نقصان، ڊگھي-مدت آپريٽنگ خرچن کي گھٽائڻ |
![]() |
حفاظت ۽ تحفظ جون خاصيتون بهتر آپريشنل حفاظت لاءِ ELSP ۽ bayonet فيوز شامل آهن |
02 پيداواري عمل
2.1 ڪور
ٽي-مرحلي پيڊ-ماؤنٽ ٿيل ٽرانسفارمر هڪ ٽي-مرحلي ٽي-ڪالمن جي بنيادي ڊيزائن کي ٽن آزاد ڪالمن سان گڏ، هر هڪ برابر طور تي ونڊ ورهائي ٿو ته جيئن متوازن ٽن-مرحلي طاقت کي يقيني بڻائي سگهجي. هي ڊزائين مقناطيسي وهڪري جي استعمال کي بهتر بڻائي ٿو، نقصان گھٽائي ٿو، ۽ برقياتي مقناطيسي شور ۽ کمپن کي گھٽائي ٿو، انهي سان گڏ آپريٽنگ ماحول کي بهتر بڻائي ٿو. اضافي طور تي، اها هوا جي گردش جي اجازت ڏئي ٿي، گرمي جي ضايع ڪرڻ ۽ استحڪام کي وڌائڻ، جڏهن ته شارٽ سرڪٽ دوران ميڪيڪل دٻاء کي منهن ڏيڻ جي قابل ٿي، حفاظت وڌائي.

2.2 ونڊڻ

گھٽ- وولٽيج وائنڊنگ وڏي مٿاڇري واري علائقي سان هڪ ورق ڪنڊڪٽر استعمال ڪري ٿي، مؤثر طريقي سان مزاحمت ۽ نقصانن کي گھٽائي ٿي، ان ڪري ڪارڪردگي وڌائي ٿي. ان جي ابتڙ، هاءِ-وولٽيج وائنڊنگ استعمال ڪري ٿي تار وائنڊنگ مواد مان ٺهيل سٺي موصليت جي خاصيتن سان اعلي-وولٽيج گهرجن کي پورو ڪرڻ لاءِ. هي گڏيل ڊيزائن فائدا پيش ڪري ٿو جهڙوڪ گهٽ-وولٽيج ورق وائنڊنگ مان لڪيج ۽ برقي مقناطيسي مداخلت، جڏهن ته گرمي جي ضايع ٿيڻ کي بهتر بڻائي ٿي. هاءِ-وولٽيج وائر وائنڊنگ اعليٰ-وولٽيج جي حالتن ۾ حفاظت ۽ استحڪام کي يقيني بڻائي ٿي، لوڊ ڪرڻ جي وهڪري ۽ مختصر-سرڪٽ جي حالتن ۾ سامان جي موافقت کي وڌائي ٿي.
2.3 ٽانڪي
ٽن-فيز باڪس ٽرانسفارمر لاءِ آئل ٽينڪ جي تياري واري عمل ۾ اعليٰ-معيار جي نرم اسٽيل پليٽن کي چونڊڻ شامل آهي، جنهن کان پوءِ درست ڪٽڻ ۽ ويلڊنگ شامل آهي ته جيئن ويلڊز جي سيلنگ ۽ مضبوطيءَ کي يقيني بڻائي سگهجي. ان کان پوءِ، مٿاڇري کي صاف ڪيو ويندو آهي ۽ پرائمر سان ليپ ڪيو ويندو آهي ته جيئن آسنجن ۽ سنکنرن جي مزاحمت کي وڌايو وڃي، ان کان پوءِ موسم جي مزاحمت کي بهتر بڻائڻ لاءِ هڪ ٽاپ ڪوٽ لڳايو وڃي. ڪيترن ئي تہن جي ڪوٽنگ ۽ خشڪ ٿيڻ کان پوءِ، ايئر-تڪڙي ۽ دٻاءُ جا امتحان ڪيا ويندا آهن ته جيئن تيل جي ٽانڪي جي حفاظت کي يقيني بڻائي سگهجي ته اعليٰ-پريشر حالتن ۾. پروسيس جو هي سلسلو يقيني بڻائي ٿو ته آئل ٽينڪ بهترين حفاظتي ڪارڪردگي فراهم ڪري ٿي ۽ ٽرانسفارمر جي خدمت زندگي کي وڌائي ٿي.

2.4 10-سپورٽ فريم سان سوراخ ڪرڻ

گھٽ-وولٽيج 10-سپورٽ فريم سان سوراخ بشنگ، آسان وائرنگ ۽ لچڪدار ڪنيڪشن لاءِ ٺهيل؛ تنصيب کي سڌو بڻائي ٿو، وقت بچائي ٿو، پيچيدگي گھٽائي ٿو. سپورٽ فريم ميڪانياتي طاقت وڌائيندو آهي، بشنگ کي مستحڪم رکندو آهي جيتوڻيڪ کمپن يا ڳري لوڊ هيٺ. غلط ترتيب کي روڪڻ ۾ مدد ڪري ٿي، ڊگھي-مدد جي قابل اعتماد آپريشن کي يقيني بڻائي ٿي. معائنو ڪرڻ آسان، برقرار رکڻ لاءِ سادو، سخت ماحول ۾ سٺو ڪم ڪري ٿو، گھٽ وولٽيج ڪنيڪشن لاءِ محفوظ ۽ پائيدار انٽرفيس مهيا ڪري ٿو.
03 جاچ
|
نه. |
ٽيسٽ آئٽم |
|
1 |
مزاحمت جي ماپ |
|
2 |
تناسب ٽيسٽ |
|
3 |
مرحلو-رابطي جا امتحان |
|
4 |
نه- لوڊ نقصان ۽ جوش ڪرنٽ |
|
5 |
لوڊ نقصان impedance voltage ۽ ڪارڪردگي |
|
6 |
اپلائيڊ وولٽيج ٽيسٽ |
|
7 |
Induced Voltage Withstand Test |
|
8 |
ليڪ ٽيسٽ |
|
9 |
موصليت جي مزاحمت جي ماپ |
|
10 |
تيل Dielectric ٽيسٽ |


04 پيڪنگ ۽ شپنگ


05 حسب ضرورت صلاحيتون
اسان جا ٽي-فيز پيڊ- لڳل ٽرانسفارمر صرف "هڪ-سائيز-سڀني-سائيٽ ۾ نه هوندا آهن." اھي ٺھيل آھن موافقت ڪرڻ لاءِ، لچڪائڻ لاءِ، جنھن طريقي سان توھان پنھنجي نيٽ ورڪ کي اصل ۾ ھلائي رھيا آھيو-پوءِ افاديت، صنعتي، يا تجارتي. تقريبن هر شي کي ترتيب ڏئي سگهجي ٿو، برقي چشمي کان ميڪيڪل ترتيب، کولنگ، ۽ حفاظتي ڊوائيسز تائين.

برقي ۽ ڪارڪردگي جا اختيار
درجه بندي پاور: 45 kVA تائين 10,000 kVA
هاء وولٹیج: 46 kV تائين
فریکوئنسي: 50 Hz يا 60 Hz
ویکٹر گروپ: YNyn0، YNd11، Dyn11، ۽ ٻيا
فيڊ جي جوڙجڪ: ريڊيل يا لوپ- فيڊ
BIL درجه بندي: HV 45–150 kV (ميل فرنٽ)، 200 kV (لائيو فرنٽ)؛ LV 30-60 kV
ونڊ ۽ کولنگ حسب ضرورت
کولنگ جا قسم: ONAN، ONAN (F)، KNAN (F)، LNAN (F) درخواست تي دستياب آهن
هاء-وولٽيج ۽ گھٽ-وولٽيج وائنڊنگ مواد: ٽامي يا ايلومينيم
وولٽيج ٽيپس ۽ ٽيپ چينجرز: NLTC، ڊيلٽا-وائي سوئچ، ڊول-وولٽيج سوئچ
مشيني ۽ ٽرمينل جا اختيار
HV ٽرمينل: مئل-سامهون يا لائيو-سامهون
LV ٽرمينل: معياري flange يا ڪسٽم بس ڪنيڪشن
سوئچ ڪنفيگريشن: LBOR سوئچ (2 يا 4 پوزيشن)، V- بليڊ، T- بليڊ
لوازمات: ڪهاڙي بند ڪرڻ وارو، گرم-ڊپ گيلوانائيزڊ ريڊيٽرز، وائننگ گرمي پد جا اشارا
تحفظ ۽ نگراني
فيوز: بيونٽ فيوز، اي ايل ايس پي فيوز، وي ايف آئي فيوز
اضافي مانيٽرنگ ڊيوائس: تيل جي سطح گيج، گرمي پد گيج، پريشر-ويڪيوم گيج، پريشر رليف ڊيوائسز، گيس سمپلنگ پورٽ
انهن ڪسٽمائيزيشن اختيارن سان، اسان جا ٽرانسفارمرز مخصوص ماحولياتي حالتن، حفاظتي گهرجن، لوڊ پروفائلز، ۽ آپريشنل ترجيحن کي پورا ڪرڻ لاءِ ٺاهي سگھجن ٿا-ڪنهن به پاور ڊسٽريبيوشن پروجيڪٽ لاءِ وڌ ۾ وڌ اعتماد، ڪارڪردگي، ۽ ڊگھي-پرفارمنس کي يقيني بڻائي.
گرم ٽيگ: ansi c57 12.34 ٽرانسفارمر، ٺاهيندڙ، فراهم ڪندڙ، قيمت، قيمت
You Might Also Like
موڪليو...














